Oil & Gas , Petrochemical
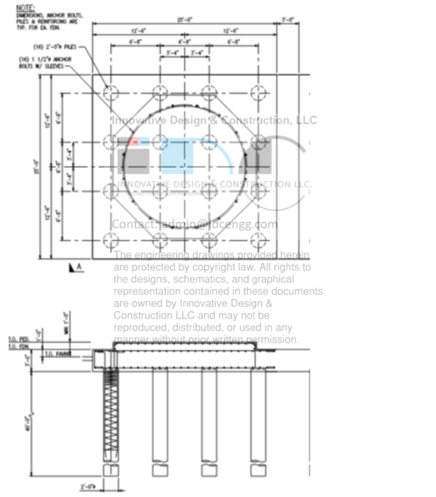
With over 15 years of experience in the oil & gas, and petrochemical industry, our engineering expertise focuses on the structural design of equipment foundations, pipe racks , platforms and support systems for critical process units. We specialize in developing safe, durable, and cost-effective structures for pressure vessels, heat exchangers, columns, tanks, pumps, and compressors, ensuring compliance with AISC, ACI, ASME, PIP and API standards. Each design carefully considers static and dynamic loads, wind and seismic effects, thermal expansion, and vibration control to ensure stability and reliability under demanding operating conditions. Our integrated approach emphasizes close coordination with process, mechanical, and piping disciplines to achieve optimal layouts, constructability, and maintenance access, while incorporating robust corrosion protection systems to ensure long-term performance and sustainability in harsh oil and gas environments.
